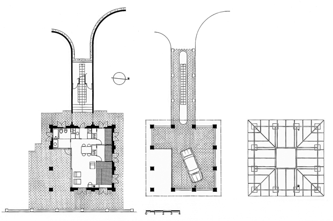
Belvedere Georgina, 1970-1972
con Lluís Clotet
Localización: Llofriu, Girona
Colaboradores:
Aparejador: Santiago Loperena
Interiorista: Anna Bohigas
Superficie construida: 66 m2
"Nos era difícil imaginar una vivienda pequeñísima aislada en este paisaje. Estas casitas, con elementos de gran mansión a escala reducida, resultan por lo general muy cursis. Veíamos más posibilidades en tomar un objeto diferente conservando sus dimensiones correctas y adaptarlo a la función de vivienda. Admirábamos la sabiduría con que algunas arquitecturas históricas situaban pequeños edificios con personalidad propia sin recurrir a enmascararlos en el terreno. Las formas simples geométricas y rotundas en cenadores, rotondas y belvederes era la mejor que podíamos imaginar. Introducir una vivienda funcional en un belvedere paladiano parecía posible y generador además de insólitas superposiciones."
OTB
(Fotografías de Jaume Blassi, Oriol Maspons, Lluís Casals y OTB)




















