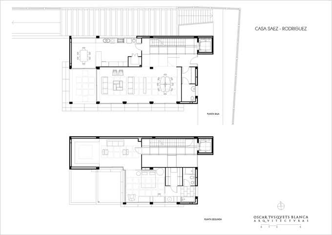
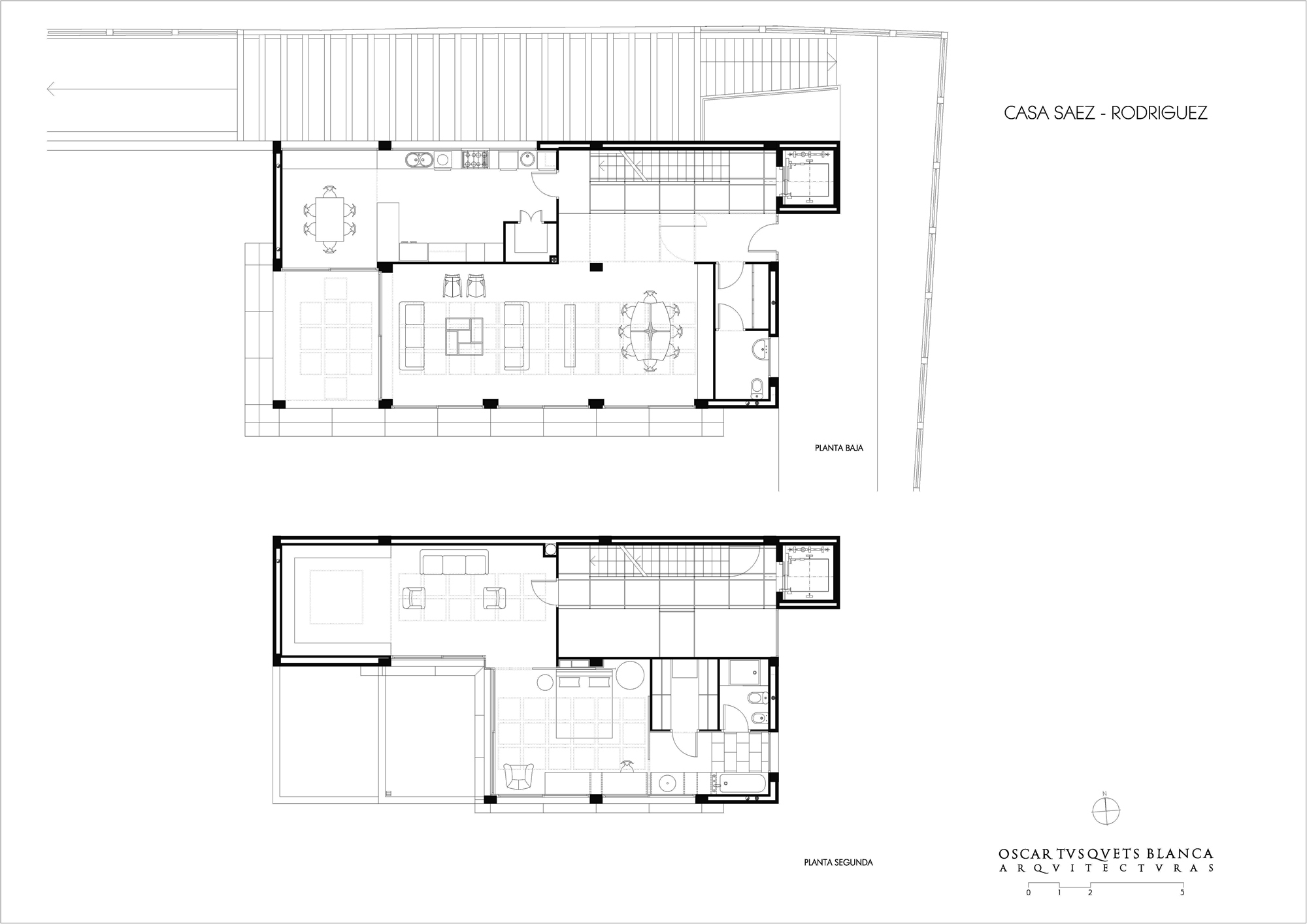
Sáez Rodriguez, 2001-2005
Localización: Sant Cugat. Barcelona
Colaborador:
Carlos Alejandro Yunta
Superficie construida: 500 m2
La construcción se escalona provocando porches y terrazas hacia el Sur.
El hueco de la escalera iluminada por claraboyas y con pavimento vidriado es el corazón de la planta subterránea y de las tres plantas sobre el terreno.
(Fotografías Luis Ros)

















