

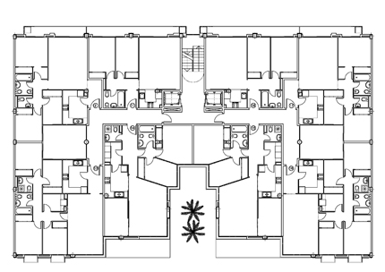
Carme, 1994-1995
Localización: Barcelona
Autor: Oscar Tusquets Blanca
Colaboradores:
Coordinador: Carles Díaz
Director del proyecto: Eduard Permanyer
Superficie construida: 3.100 m2
Una calle muy estrecha del barrio viejo de la ciudad. Mucha profundidad edificable. La fachada se retrasa en amplia
hendidura para iluminar las dependencias retrasadas de las viviendas y solear la calle.







