Colonia Güell, 2001-2004
Localización: Santa Coloma de Cervelló, Barcelona
Colaboradores:
Coordinador: Carles Díaz
Director del proyecto: Pep Palaín
Estructura: Enric Torrent y Jesús Jiménez
Aparejador: Susana Pavón
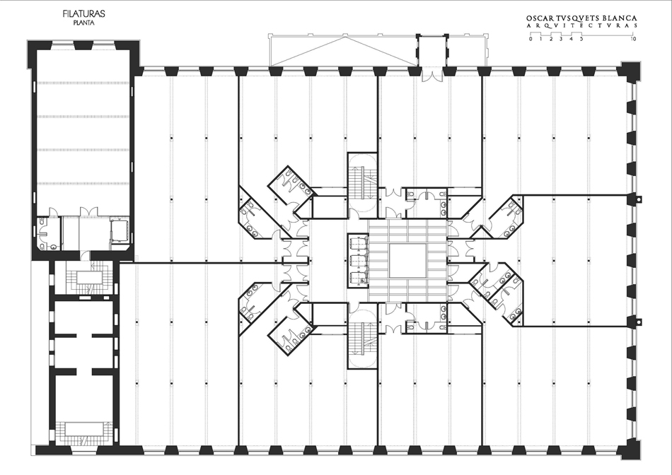
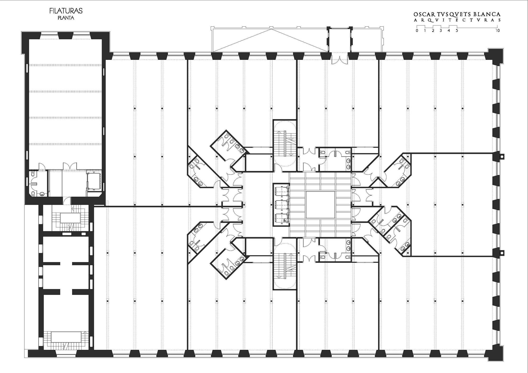
Superficie construida: 14.857 m2
"El valor patrimonial de la Colonia Güell es indiscutible y la pareja de edificios que nos ocupan son los mejores del conjunto. El volumen de la fábrica, la correcta proporción de los huecos y la repetición ordenada de los mismos otorgan al conjunto una dignidad que convenía respetar. Por este motivo se procedió a la restauración completa de las fachadas. Para los nuevos servicios: escaleras, ascensores, aseos... diseñamos un nuevo edificio situado en el centro de cada uno de los antiguos, un edificio contemporáneo, tecnológico y totalmente incombustible de carácter contrapuesto al antiguo, por este motivo las escaleras son de acero y vidrio y los muros de cerramiento de ladrillo vidriado de color azul brillante."
OTB
(Fotografías de Rafael Vargas y Agustín Amate)


















