Torre Copisa, 2004-2007
Localización: Barcelona
Colaboradores:
Coordinador: Carles Díaz
Director del proyecto: Eduard Permanyer
Estructura: Enric Torrent
Superficie construida: 7.041 m2
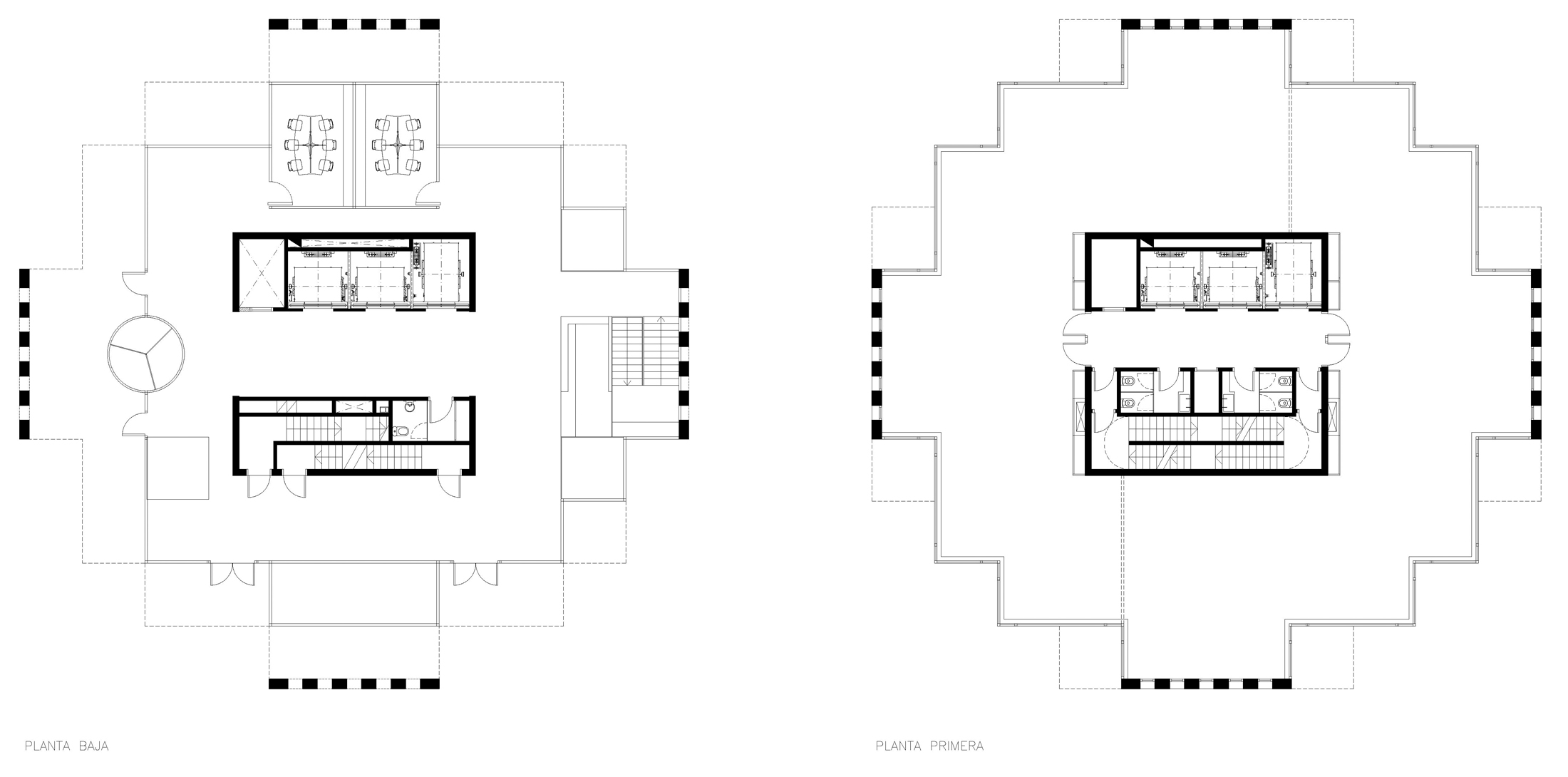
Una torre invertida, un zigurat boca abajo; relativamente pequeña respecto a sus vecinas, aunque con una presencia importante en el conjunto de la Plaza Europa. Usualmente las torres pierden superficie al ir ascendiendo; sin embargo, son las plantas altas las más solicitadas. Estudiamos un edificio de planta cuadrada con la máxima ocupación en su parte superior, y que va perdiendo superficie, erosionado por las esquinas, a medida que desciende, alcanzando la superficie mínima cuando llega a la planta baja.
Las esquinas acristaladas se hacen progresivamente mayores a medida que se aproximan al suelo y se alejan de la luz. Sin embargo, la mayor parte de la fachada huye del muro cortina totalmente vidriado (aberración climática utilizada indiscriminadamente).
(Fotografías de Lluís Ros y Gabi Beneyto)


















